18064 Soldier Street, Omaha NE 68136

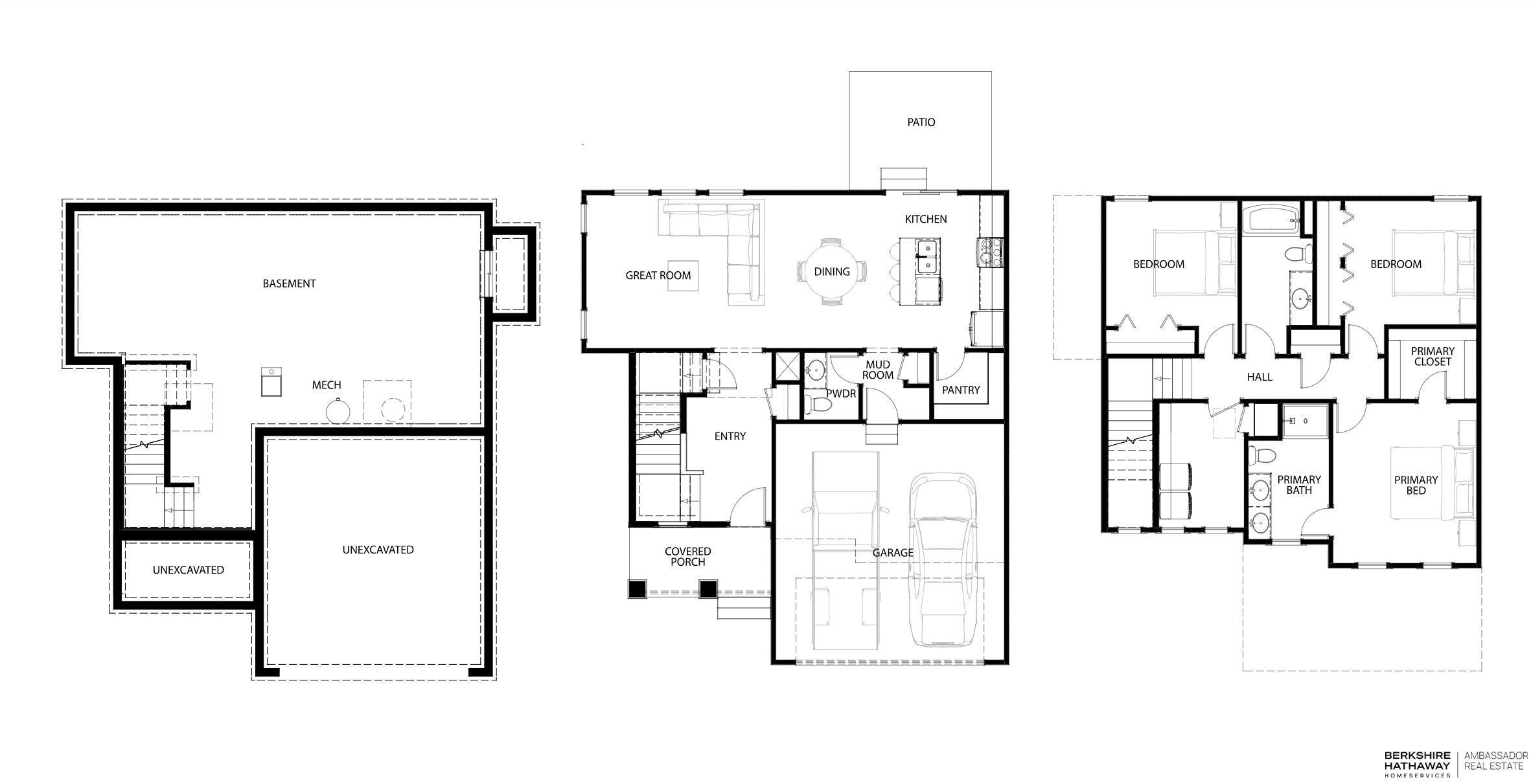
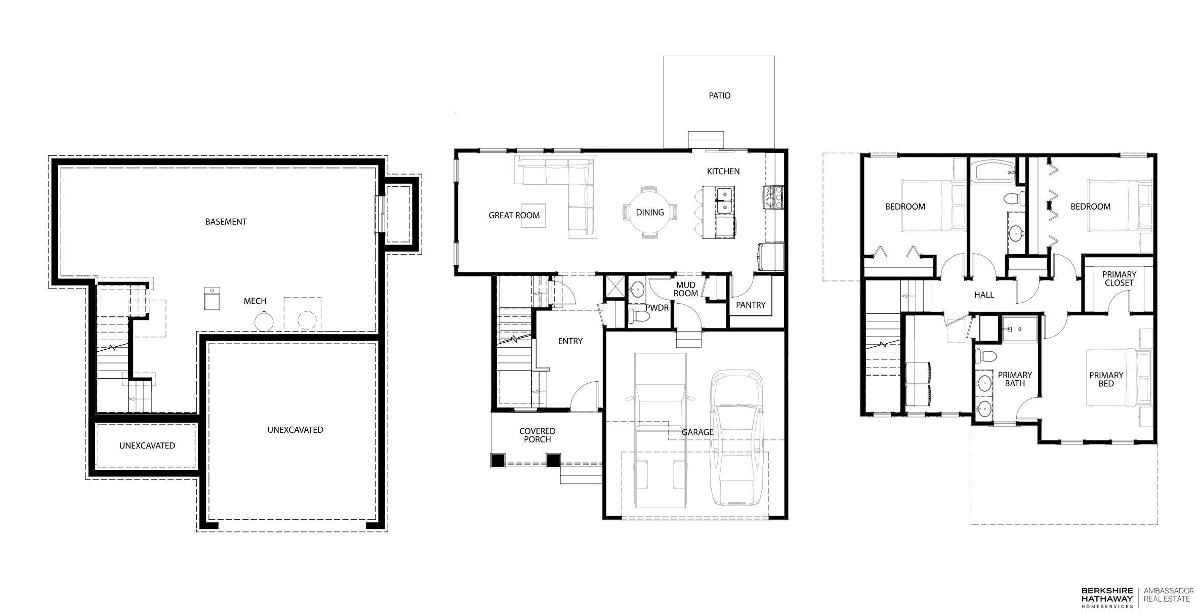
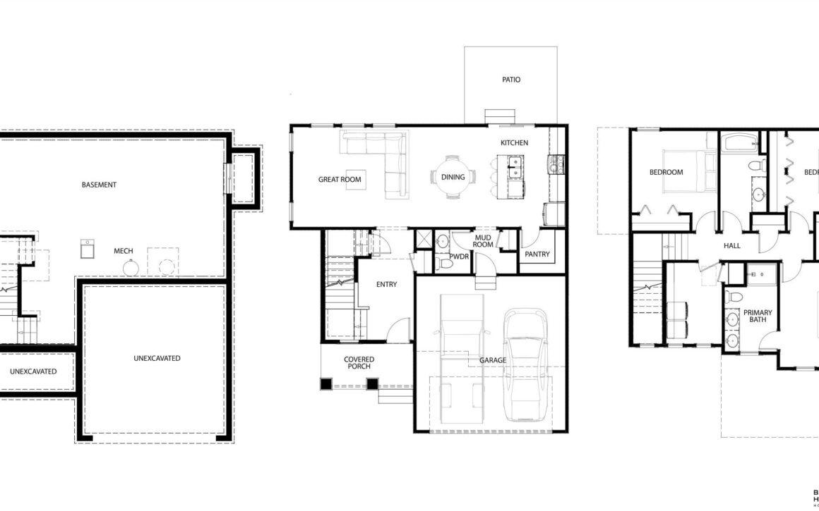
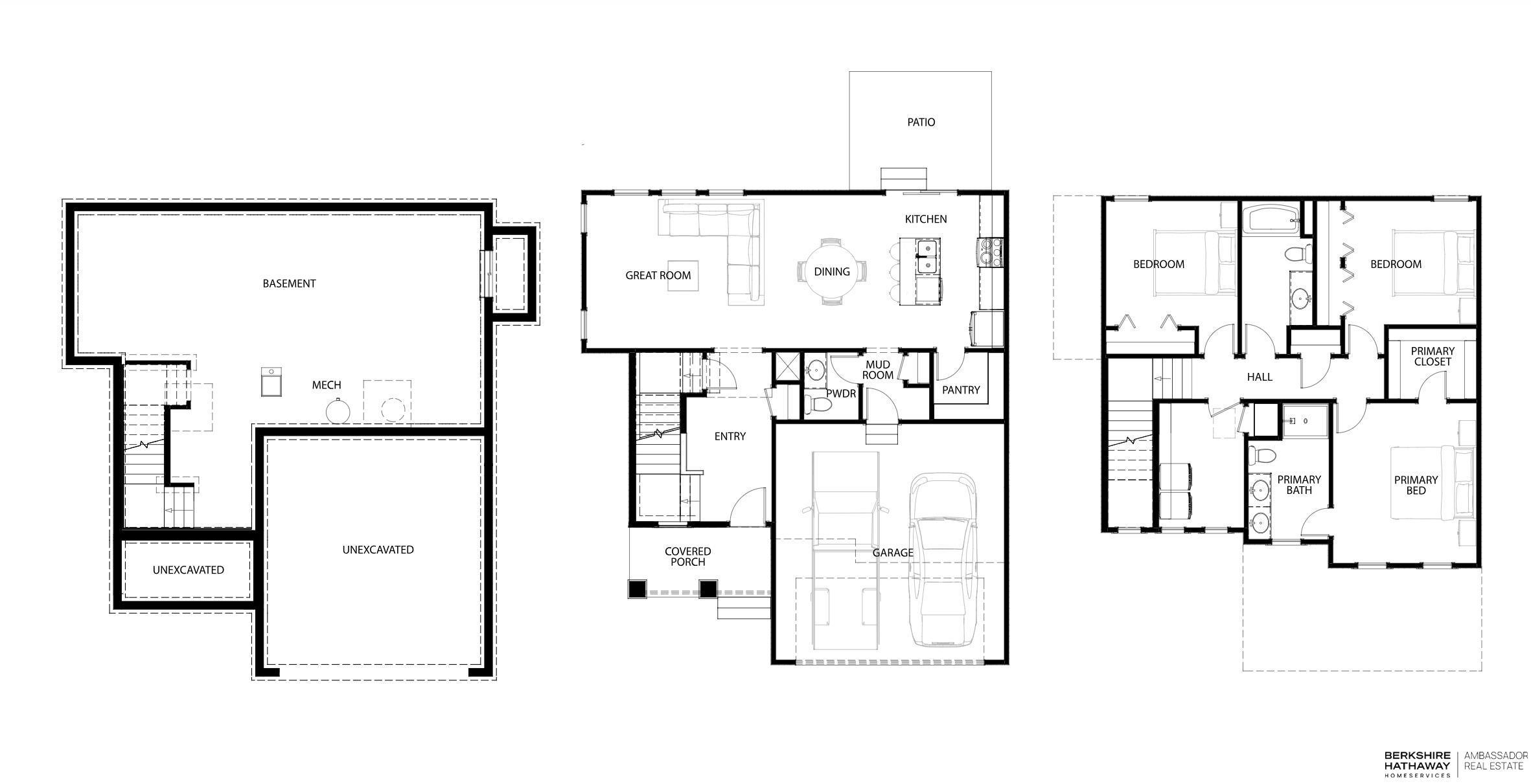
Welcome to the COBALT Plan located on a south facing, walkout lot. Upon entering, you’ll find the staircase to the upper level tucked neatly to the side, the entry opens up into a spacious Great Room, perfect for family gatherings and entertaining guests. The Great Room leads you to the well-designed dining area that seamlessly flows into the kitchen. Completing the main floor layout, you’ll find a powder bath and mudroom situated by the garage entry door. The upper level features three spacious bedrooms and an expansive laundry area, ensuring that the everyday essentials are easily accessible. The Cobalt floor plan combines a practical layout with the elegance and comfort expected from Richland Homes, making it an ideal choice for those seeking a versatile and inviting two-story home. Est Completion, Late Fall 2025