18060 Soldier Street, Omaha NE 68136

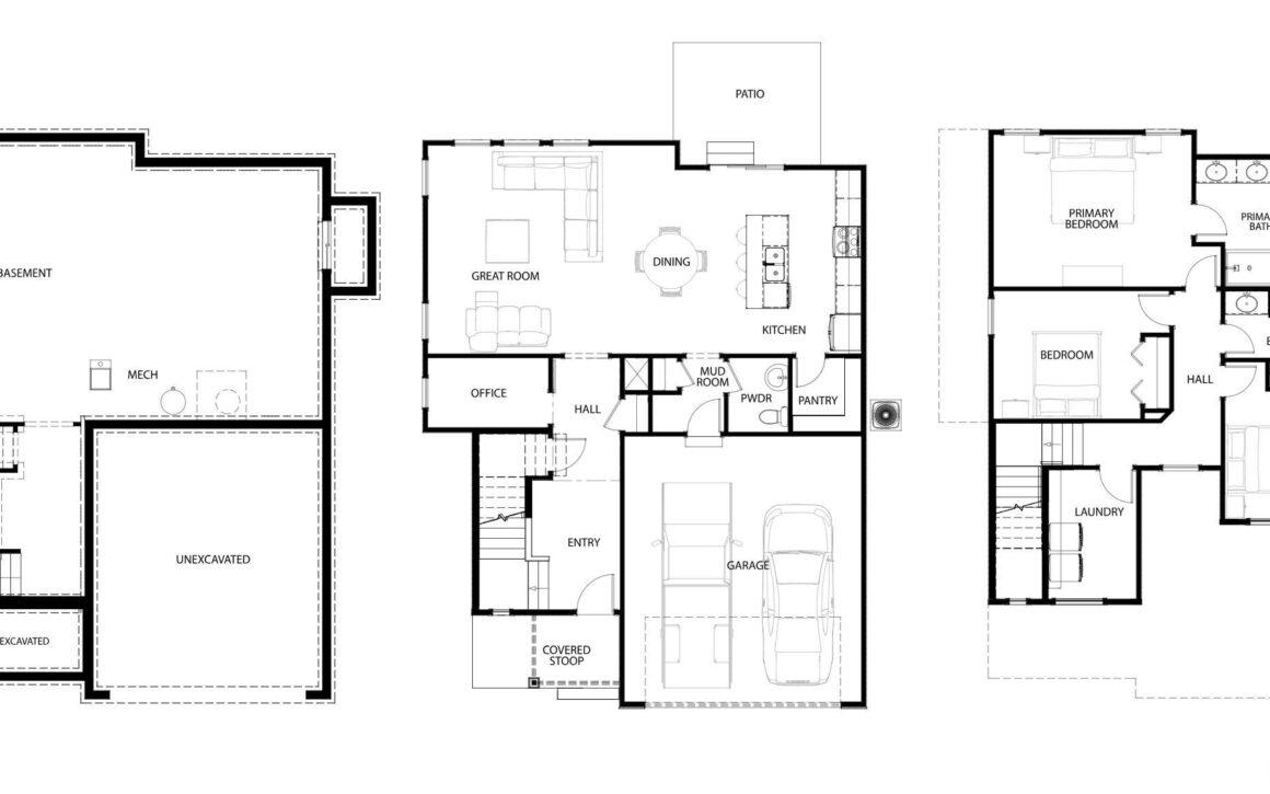
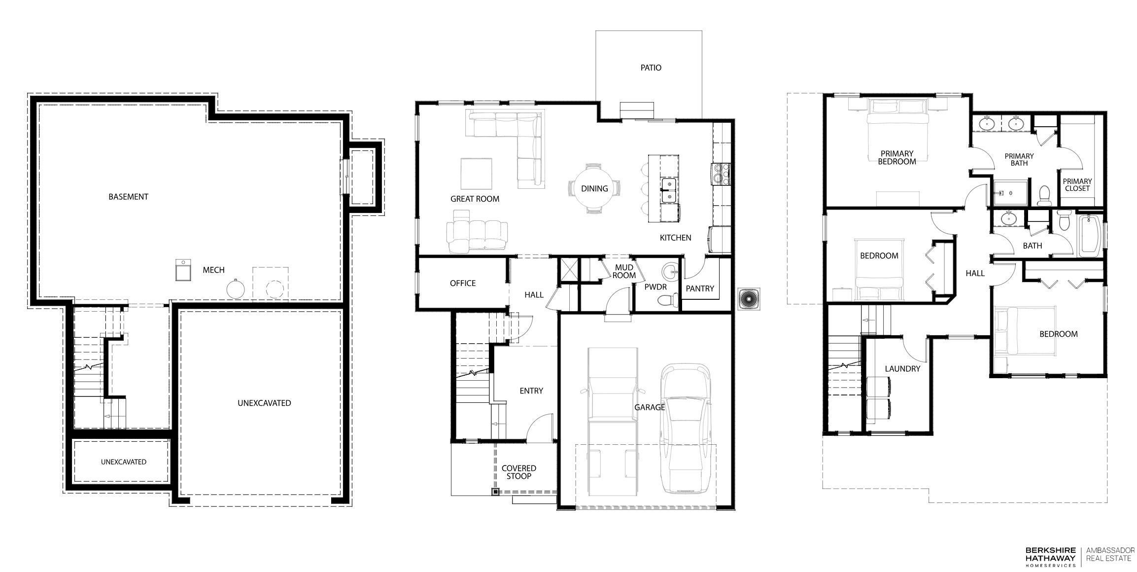
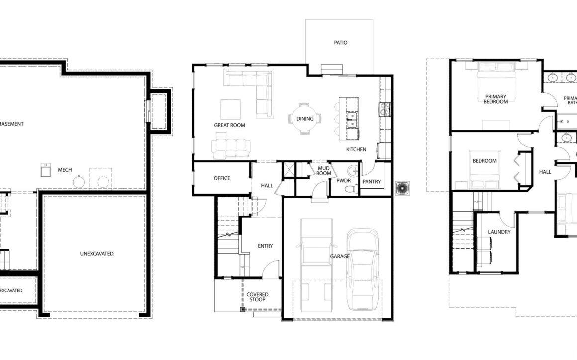
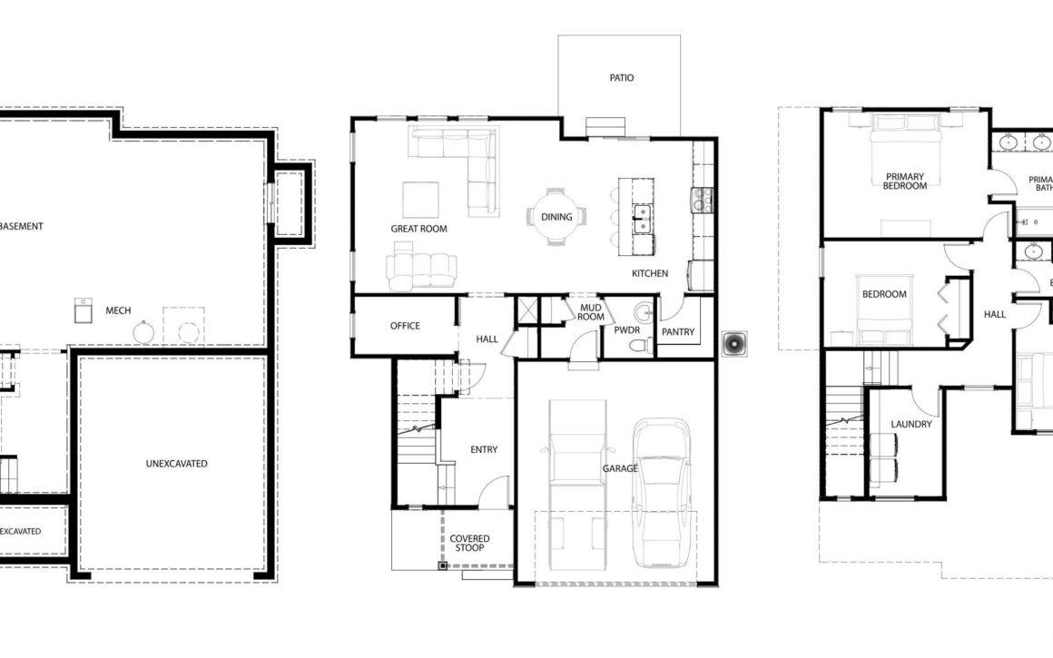
Welcome to the Granite Plan by Richland Homes. As you step inside, the staircase to the upper level is discreetly positioned to the side, allowing for an unobstructed flow into the main living areas. The entry leads into an expansive Great Room, adjacent to the Great Room featuring an electric fireplace, you’ll find a well-planned dining area that transitions smoothly into the kitchen. This area is designed for both convenience and pure functionality. Powder bath and a mudroom conveniently located nearby the garage entry. The second floor includes three generously sized bedrooms and a large laundry area, offering easy access to everyday essentials. Home is under construction, est completion is later Fall 2025